64014 Martiniscuro ,Prowincja Terramo , Włochy
Nowy czterokondygnacyjny apartamentowiec w spokojnej, nadmorskiej części Martinsicuro (Abruzja), zlokalizowany 600 m od morza, oferuje nowoczesne mieszkania z dużymi, słonecznymi tarasami. Apartamenty dostępne są w standardzie deweloperskim – z ceramiką na podłogach, pomalowanymi na biało ścianami, kompletną armaturą łazienkową, instalacją klimatyzacji i ogrzewania oraz gotowymi przełącznikami i kontaktami.
Do wyboru: widok na morze lub góry, a opcjonalnie także garaż podziemny lub miejsce parkingowe przed budynkiem.
Idealne miejsce dla osób szukających spokoju, komfortu i bliskości plaży.
Na pierwszym pietrze zlokalizowane jest pięć apartamentów o wielkościach od 75 do 100 m2 .
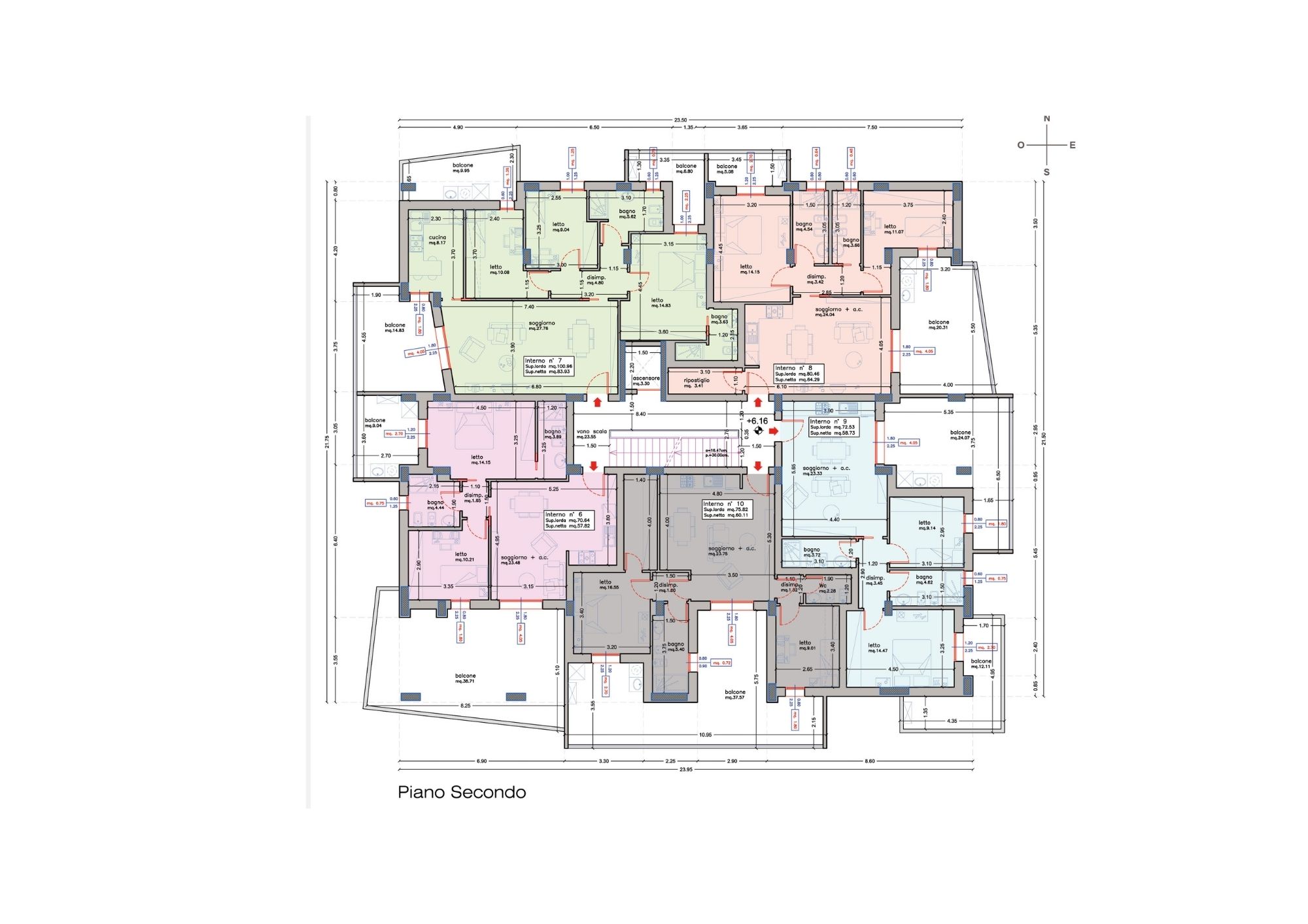
Na drugim pietrze zlokalizowane jest pięć apartamentów o wielkościach od 72 do 100 m2 .
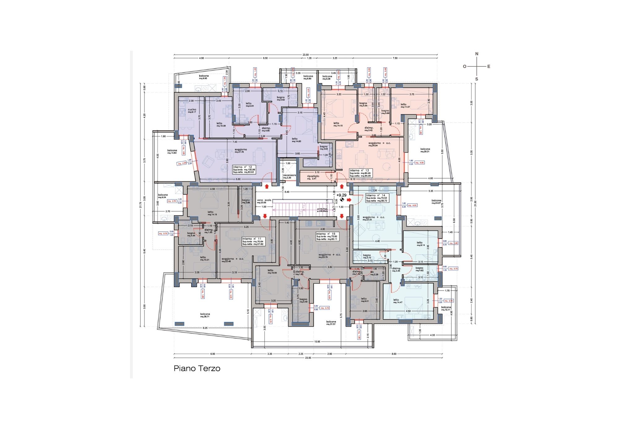
Na trzecim pietrze zlokalizowane jest pięć apartamentów o wielkościach od 72 do 100 m2 .
Zadzwoń i zapytaj o cenę
Dodano: 2026-02-24
Zadzwoń i zapytaj o cenę
Dodano: 2025-11-28
Zadzwoń i zapytaj o cenę
Dodano: 2025-11-25
Villa Rafaella
Posiadanie domu jest podstawą bogactwa… zarówno dobrobytu finansowego, jak i bezpieczeństwa emocjonalnego.
Suze Orman